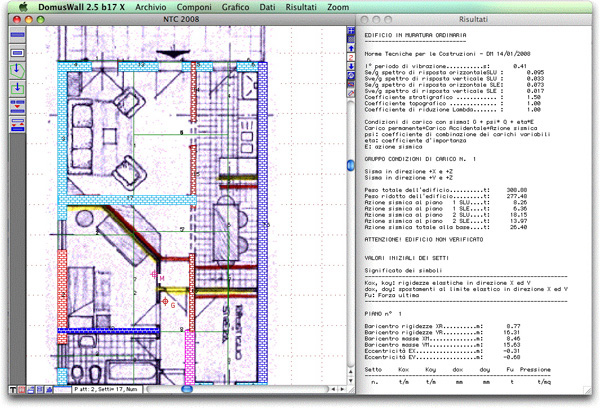
DomusWall è un programma di calcolo strutturale per la verifica e il progetto degli edifici in muratura, vecchia e nuova, ordinaria e armata.
Dal 1 Luglio 2009 è obbligatorio utilizzare la nuova normativa per le costruzioni, che DomusWall supporta pienamente.
Fra le caratteristiche più interessanti citiamo:
– Grande libertà di modellazione della struttura
– Introduzione e modifica grafica della struttura e dei carichi
– Calcolo lineare e non lineare
– Verifica globale per Stati Limite Ultimi e Stati Limite di Danno
– Verifiche locali a pressoflessione, taglio, azioni laterali e ribaltamento
– Importazione e copia e incolla di immagini e disegni
– Progetto delle armature per murature armate
– Analisi dei carichi automatica
– Verifica delle fondazioni
Per maggiori informazioni vi rimandiamo a questa pagina del sito di Interstudio.

![iGuide per i regali di Natale - macitynet..ti CTA Natale iGuida [per Settimio] - macitynet.it](https://www.macitynet.it/wp-content/uploads/2025/12/regali-di-natale-consigli-di-macitynet.jpg)











